Používame cookies

Súbory cookie a ďalšie technológie sledovania používame na zlepšenie vášho zážitku z prehliadania našich webových stránok, na to, aby sme vám zobrazovali prispôsobený obsah a cielené reklamy, na analýzu návštevnosti našich webových stránok a na pochopenie toho, odkiaľ naši návštevníci prichádzajú. Viac info

 

IV.ETAPA - Reality KOMPLEX s.r.o. Vám ponúka na PREDAJ 4 izbové rodinné domy - NOVOSTAVBY v Dolnom Bare!

Ulica: Dolný Bar
Obec: Dolný Bar
Okres: Dunajská Streda
Kraj: Trnavský kraj
Druh: Domy
Typ: Predaj
Typ domu: Rodinný dom
Iné:
200 000 €

Popis nehnuteľnosti

Reality KOMPLEX s.r.o. Vám ponúka na PREDAJ 4 izbové nízkoenergetické NOVOSTAVBY v DOLNOM BARE!

Začína sa IV.ETAPA výstavby rodinných domov na jeseň 2023. (k dispozícií bude 39 RD!!!)

Dolný Bar je malá obec na južnom Slovensku v strednej časti Žitného ostrova.  Obec leží na hlavnom ťahu z Bratislavy do Komárna (cesta E63) neďaleko termálných kúpalísk Dunajská Streda, Topoľníky a Veľký Meder.

Okolitá príroda je veľmi pekná a stvorená pre oddych. V blízkosti je možnosť na kanoistiku, nachádza sa tu aj cyklotrasa a taktiež máte možnosť na rybárčenie, keďže tu máme aj Dolnobarský rybník.

Dolný Bar ma dobrú občianskú vybavenosť ako napr. škôlka, škola, potraviny, pošta, mäsiarstvo, bistro, vlaková a autobusová zastávka, futbalové ihrisko, kostol.

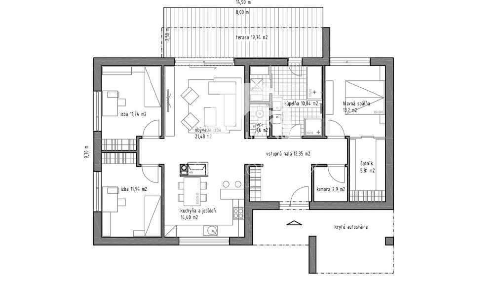
DISPOZIČNÉ RIEŠENIE:

  • predsieň
  • 3 samostatné izby
  • svetlá obývacia časť spojená s kuchyňou a s jedálňou
  • komora
  • samostatná toaleta
  • kúpeľňa s umývadlom a s vaňou alebo so sprchovým kútom+výklenok pre práčku a sušičku (tu je umiestnený aj 120 l elektrický bojler)

PARAMETRE:

  • Úžitková plocha: 103,4 m2
  • Zastavaná plocha: 139 m2
  • Plocha pozemku: 550 m2
  • Samotná záhrada: 411 m2
  • Terasa 19,74 m2

RD je navrhnutý v nízkoenergetickom štandarde / t.z do 50 KWh/m2 za rok/. Je dielom architekta, ktorý je certifikovaným projektantom pasívnych domov IEPD Darmstadt. Pre stavbu je charakteristické použitie kvalitných materiálov a kvalitná práca. 

Dom na KĽÚČ zahŕňa:

  • Pálenú červenú tehlu s 15 cm izoláciou
  • Plochú strechu 30 cm izoláciou + pravý štrk
  • Kvalitné okná
  • Dvere na terasu šírky 3 m
  • Kompletné vnútorné povrchy a maľovku
  • Kuchynskú linku so spotrebičmi
  • Drevenú podlahu v izbách
  • Drevené interiérové dvere
  • Obklady, sanitu
  • Alarm
  • Vykurovanie: elektrické podlahové
  • Interiérový krb
  • Pozemok   
  • Zatrávnený pozemok s primeraným oplotením
  • Spevnené plochy s krytím státim pred domom
  • Vlastnú studňu a automatický závlahový systém

K dispozícií je viac variantov RD:
 

4izbový RD bez garáže na kľúč:
Cena: od 200 000 EUR

4izbový RD +garáž na kľúč:
Cena: od 250 000 EUR

Na fotkách sa nachádzajú vzorové domy! Budúci majiteľ má možnosť si vybrať dlažbu, parkety, sanitu, obklady, farbu kuchyňskej linky, pracovnú dosku atď. podľa daného vzorkovníka a podľa vlastnej predstavy. 

  • Bratislava - 55 km (cez R7 40minút)
  • Galanta - 36 km
  • Győr - 38 km
  • Veľký Meder - 15 km
  • Komárno - 47 km

Neváhajte a dohodnite si obhliadku ešte dnes! Teším sa na Vás!

V cene je zahrnutý kompletný právny a katastrálny servis ako aj všetky poplatky súvisiace s prevodom nehnuteľnosti. V prípade záujmu ponúkame bezplatné finančné poradenstvo

Vlastnosti

Status:
aktívne
Vlastníctvo:
firemné
Stav:
novostavba
Celková plocha:
550 m2
Úžitková plocha:
103.4 m2
Plocha pozemku:
550 m2
Zastavaná plocha:
139 m2
Podlahová plocha:
103.4 m2
Počet izieb:
4
Balkón:
nie
Kúpeľňa:
vaňa a sprchovací kút
Počet kúpeľní:
1
Káblová televízia:
áno
El. napätie:
230/400V
Parkovanie:
áno
Voda:
studňa a vodovod
Krb:
áno
Zariadenie:
čiastočne
Garáž:
áno
Inžinierske siete:
áno
Kanalizácia:
Verejná kanalizácia
Plyn:
áno
Internet:
áno - káblový rozvod
Materiál:
tehla
Zateplený objekt:
áno
Terasa:
áno
Terasa plocha:
19.74 m2
Vykurovanie:
vlastné - elektrické
Pivnica:
nie
Status:
aktívne
Vlastníctvo:
firemné
Stav:
novostavba
Celková plocha:
550 m2
Úžitková plocha:
103.4 m2
Plocha pozemku:
550 m2
Zastavaná plocha:
139 m2
Podlahová plocha:
103.4 m2
Počet izieb:
4
Balkón:
nie
Kúpeľňa:
vaňa a sprchovací kút
Počet kúpeľní:
1
Káblová televízia:
áno
El. napätie:
230/400V
Parkovanie:
áno
Voda:
studňa a vodovod
Krb:
áno
Zariadenie:
čiastočne
Garáž:
áno
Inžinierske siete:
áno
Kanalizácia:
Verejná kanalizácia
Plyn:
áno
Internet:
áno - káblový rozvod
Materiál:
tehla
Zateplený objekt:
áno
Terasa:
áno
Terasa plocha:
19.74 m2
Vykurovanie:
vlastné - elektrické
Pivnica:
nie

Informatívna úverová kalkulačka

Pozrieť na mape

Maklér

Ing. Anikó Csicsóová

Ing. Anikó Csicsóová

Osobný maklér - Dunajská Streda a okolie

  • Slovensky
  • Magyar
  • English

Radi Vám poradíme

Podobné nehnuteľnosti